当前位置:
整木网>
整木新闻>
厂商专栏>
详情
手机版最新留言:
使用手机微信“扫一扫”功能,扫描以下二维码,即可将本文分享到“朋友圈”中。
2024-06-30 编辑:中国整木网 来源:网络 浏览数:6633
NACOOC始终以地道意式设计提供整体私属的高定服务,造就融合自然因子的跨时代居家艺术,还原纯正的意大利生活方式,呈现时光难以磨灭的品质与风格。
项目简介
草坪 秀木 绿意
喷泉 水景 家园

从意大利庄园式水景到英国肯辛顿王家公园式归家仪仗,从八大南欧风情度假园林景致到威尼斯式喷泉归家之路,365日终年无休的度假之美环绕于此,匠心凝练着人居景一体的欧陆度假风情生活空间,突显“园中园、景中景”的别致逸致,打造高尚城市度假大宅。

NACOOC始终以地道意式设计提供整体私属的高定服务,造就融合自然因子的跨时代居家艺术,还原纯正的意大利生活方式,呈现时光难以磨灭的品质与风格。
本案中,设计团队把各种色彩元素与装饰材料发挥到极致,相映生辉却毫不喧宾夺主,每个空间保留着各自的独立性而不乏共鸣感,奏鸣生活的乐章,传达对于美的独特理念。
Project Name:「南延线蔚蓝卡地亚」
Case Year:2021
Location:四川·成都

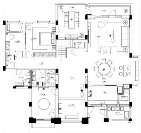
一楼平面图

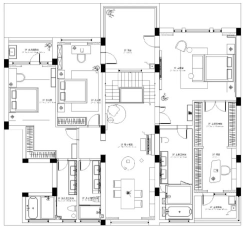
二楼平面图
Case Showing
效果呈现
入户区域
推开家门,映入眼中的是温柔的木色系调,仿佛是一堵无形的力量把繁冗拒于门外,淡化了家具的框架,只允许纯粹的质朴停留在这个空间。
灰调的鞋帽间采用了饱和度相近的天然石纹修饰,这种细腻的手法丰富了空间的层次感与起居的精致感,带来了舒适与柔和的视觉感受。

Rosany 洛丝丽

Lagos 拉格斯
客餐厅
大面积落地窗的运用让阳光盛满了整个空间,光线之下,开放式厨房弥漫出浓厚的生活气息被巧妙处理过的大理石折射着,与浅色系空间相得益彰,简单而又随性,大气沉稳的审美格调油然而生,尽显极致优雅。

Crotti Gray White
克罗蒂灰白
卧室
色彩是设计中强大的工具,总能帮助设计师做出深刻的情绪表达,创造出一个个符合多元审美,折衷有趣的空间。

Maggio Blue 马焦蓝
略显深沉的蓝色象征着睿智与成熟,是主卧室的理想配色。

Rizzo Grey 里佐灰
顽皮的绿略带叛逆的灰,这也是男生成长的必经之路。

Melton Red 麦尔登绯
娇羞的绯红色散发出少女随年渐长的俏皮感,愈显魅力。

Crotti Light Brown
克罗蒂浅咖
时间沉淀下来的豁达谦和驻足于此,年华岁月不感沧桑却显理性。
衣帽间
柔软的沙发坐垫是生活品质的符号,清净素雅,释放出一种注重本质追寻自我的美学。
而质朴的克罗蒂白让人更注重内心的真实感受,在统一的色彩里彻底释放身心,成为新的纯粹之美。

Crotti White
克罗蒂白
书房
夜空般深邃的灰色里闪烁着点点星光,柜里放着的是亲子读本,对后代的教育从来不是一蹴而就的事情;
书房内,一道神秘而宁静的卡比蓝点缀出莫能言说的轻松感,自在优雅。

Lucie Gray 鎏斯灰

Capri Blue 卡比蓝
画家列宾说:色彩即思想
她是独立于文字的一种艺术语言
传递着人们的情绪与审美
在迢迢银河里 熠熠生辉
想了解这个项目,请联系我!
我想加盟,请将项目的资料发给我。
请问我所在地区有加盟商了吗?
想了解此项目的加盟流程,请联系我!
请问加盟此项目需投资多少钱?
版权与免责声明:
凡未注明稿件来源的内容均为转稿或由企业用户注册发布,本网转载出于传递更多信息的目的,如转稿涉及版权问题,请作者联系我们处理。我们对页面中展示内容的真实性、准确性和合法性均不承担任何法律责任。
如内容信息对您产生影响,请及时联系我们修改或删除。
上一篇:DOWOOD丨人间有味是清欢
下一篇:洛卡家居
15811192007

今天已经有 236 人获取加盟资料
激发新活力,释放新动能,大咖齐聚,闪耀门展-2023中国国际门业展览会(北京门展),中国木门网、中居联高端访谈栏目专访鑫雅迪负离子木门营销总监刘志峰。
激发新活力,释放新动能,大咖齐聚,闪耀门展-2023中国国际门业展览会(北京门展),中国木门网、中居联高端访谈栏目专访洋诚智慧木门总经理王智。
激发新活力,释放新动能,大咖齐聚,闪耀门展-2023中国国际门业展览会(北京门展),中国木门网、中居联高端访谈栏目专访戴克爱家高定刘杰。
激发新活力,释放新动能,大咖齐聚,闪耀门展-2023中国国际门业展览会(北京门展),中国木门网、中居联高端访谈栏目专访品桥木门总经理隗治洪
激发新活力,释放新动能,大咖齐聚,闪耀门展-2023中国国际门业展览会(北京门展),中国木门网、中居联高端访谈栏目专访兄弟木门营销总经理鲍壮。
2024门业及定制家居品牌峰会暨中居联杯·2023年度木门及门墙柜整装十大品牌表彰盛典圆满落幕
最近,陆陆续续有几位企业主来信来电,对当今国际局势深感焦虑,分别约我深度探讨一下当下局势及其可能的演化方向与进程,以便看清楚未来的机会和风险,并给出一些建议,以便早做准备。
让加盟更诚信 让选择更放心
立即咨询做有权威的品牌